Strona wykorzystuje COOKIES w celach statystycznych, bezpieczeństwa oraz prawidłowego działania serwisu (więcej informacji).
Jeśli nie wyrażasz na to zgody, wyłącz obsługę cookies w ustawieniach Twojej przeglądarki. Rozumiem, nie pokazuj więcej tego komunikatu.

nasza oferta
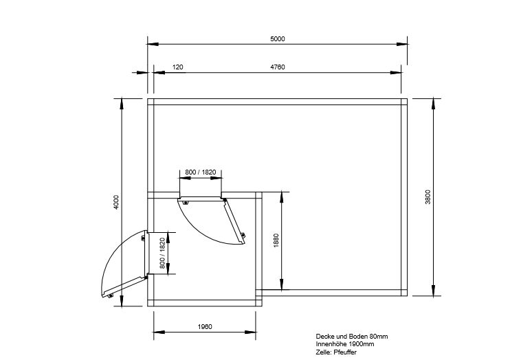
Komory mroźnicze, chłodnicze, mroźnio-garownie » Komora chłodnicza oraz komora mroźniczo - garownicza
Komora chłodnicza oraz komora mroźniczo - garownicza









nasi partnerzy